Blueprints
Ground Floor (For the house under construction, the garage is rotated 90 degrees with the entry on the right)
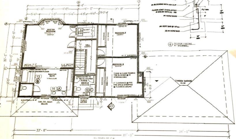
Second Floor
Elevation Drawings (For the house under construction, the garage is rotated 90 degrees with the entry on the EAST side)
Top of Page